Zbudują nowę komendę straży pożarnej w Wadowicach. Ogłoszono pierwsze zamówienie

Komenda wojewódzka straży pożarnej w Krakowie zdecydowała w końcu o rozpisaniu zamówienia na wykonanie projektu dla nowej siedziby straży Wadowicach. Budynek ma stanąć do 2025 roku przy ulicy Błonie.
Rok minął odkąd gmina i starostwo podpisały porozumienia w sprawie zamiany działek i w końcu coś drgnęło w sprawie nowej inwestycji.
Przed rokiem gmina Wadowice oddała starostwu 96 arów przy ulicy Błonie. Na tych działkach ma zostać wybudowana nowa komenda zawodowej straży pożarnej. Jednocześnie starostwo oddało gminie 57 arów działki przy ulicy Nadbrzeżnej i Wojska Polskiego w Wadowicach wraz ze starym budynkiem straży pożarnej. Wartość nieruchomości przekazanej miastu to 3,5 mln zł.
We wtorek (6.12) Komenda Wojewódzka Państwowej Straży Pożarnej w Krakowie ogłosiła przetarg na wykonanie pełnej dokumentacji projektowej wraz z nadzorem budowy Komendy PSP w Wadowicach. Wstępnie projekt wyceniono na nieco ponad 325 tys. zł. Na razie trudno określić ile będzie kosztowała sama budowa. Można jednak szacować, że kwota będzie podobna ( ze względu na kubaturę budynku) do powstałej niedawno komendy powiatowej policji, czyli około 30 mln zł.
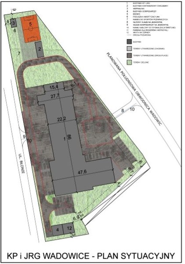
Nowa komenda ma znajdować się na działkach o wielkości prawie jednego hektara, a sama powierzchnia użytkowa budynku będzie mieć prawie 3500 metrów kwadratowych.
Jak czytamy w przetargu, prognozowany okres sprawowania nadzoru autorskiego nad projektem będzie trwał od 1 września 2023 roku do końca 2025 roku. Przedsiębiorcy mają czas do 16 grudnia na przedstawienie swoich ofert.
Pomysł budowy nowej strażnicy w Wadowicach od 15 lat forsował obecny komendant PSP Paweł Kwarciak. Niestety, strażacy musieli długo czekać, by znaleźć sojuszników dla swojej inwestycji. Na początku obecnej kadencji samorządu jego starania poparł burmistrz Wadowic Bartosz Kaliński, który zgodził się na przekazanie terenów przy ulicy Błonie, vis a vis stadionu Skawy Wadowice.
Ta lokalizacja strażakom wydała się idealna, ponieważ tereny te mają zostać w przyszłości skomunikowane południową obwodnicą miasta. Działka już zatem jest, ale do samej budowy jeszcze daleko.

Fot. z dokumentacji przetargowej
Czytaj więcej
Chcesz, abyśmy opisali Twoją historię albo zajęli się jakimś problemem? Masz ciekawy temat? Napisz do nas. Listy od Internautów już wielokrotnie nas inspirowały, a na ich podstawie powstały liczne teksty. Wiele listów publikujemy w całości. Napisz do Nas: portal@wadowice24.pl